服務熱線:15195518515在線客服:1464856260
傳真號碼:0517-86801009
郵箱號碼:1464856260@qq.com
網 址:http://m.88188cn.com
地 址:江蘇省金湖縣理士大道61號
旋進旋渦流量計產品概述
旋進旋渦流量計可集流量、溫度、壓力檢測功能于一體,并能進行溫度、壓力、壓縮因子自動補償,并且具有較強的抗震動和抗干擾能力,高精度和高重復性,是石油、化工、電力、冶金等行業用于氣體計量的理想儀表。
旋進旋渦流量計主要特點
1.無機械可動部件,不易腐蝕,穩定可靠,壽命長,長期運行無須特殊維護;
2.采用 16 位計算機芯片,集成度高,體積小,性能好,整機功能強;
3.智能型流量計集流量探頭、微處理器、壓力、溫度傳感器于一體, 采取內置式組合,使結構更加緊湊,可直接測量流體的流量、壓力和溫度,并自動實時跟蹤補償和壓縮因子修正;
4.采用雙探頭檢測技術及新型傳感器處理技術、合理的安裝方式,大大地提高信號強度,使傳感器能準確地檢測出信號,并抑制由管線振動引起的干擾;
5.采用國內**的智能抗震技術,有效的抑制了震動和壓力波動造成的干擾信號;
6.采用漢字點陣顯示屏,顯示位數多,讀數直觀方便,可直接顯示工作狀態下的體積流量、標準狀態下的體積流量、總量,以及介質壓力、溫度等參數;
7.轉換器可輸出頻率脈沖、4~20mA 模擬信號,并具有 RS485 接口,可直接與計算機聯網,傳輸距離可達 1.2km;
8.多物理量參數報警輸出,可由用戶任選其中之一;
9.壓力、溫度信號為傳感器輸入方式,互換性強;
10.整機功耗低,可用內置電池供電,也可外接電源。
旋進旋渦流量計主要用途
智能旋進旋渦流量計可廣泛應用于石油、化工、電力、冶金、城市供氣等行業測量各種氣體流量,是目前油田和城市天然氣輸配計量和貿易計量的*選產品。
旋進旋渦流量計結構與工作原理
1.1 流量計結構
旋進旋渦流量計結構緊湊,主要由殼體、旋渦發生體、傳感器(溫度、壓力、流量)、整流器和積算儀構成。
1.旋渦發生體:用鋁合金制成,具有一定角度的螺旋葉片,它固定在殼體收縮段前部,強迫流體產生強烈的旋渦流。
⒉殼體:本身帶有法蘭,并有一定形狀的流體通道,根據不同的工作壓力,殼體材料可采用鑄鋁合金或不銹鋼。
⒊智能流量計積算儀:由溫度、壓力檢測模擬通道、流量檢測數字通道以及微處理單元、液晶驅動電路和其它輔助電路組成,并配有外輸信號接口。
4.溫度傳感器:以 Pt100/pt1000 鉑電阻為溫度敏感元件,在一定溫度范圍內,其電阻值與溫度成對應關系。
5.壓力傳感器:以壓阻式擴散硅橋路為敏感元件,其橋臂電阻在外界壓力作用下會發生預期變化,因此在一定激勵電流作用下,其兩個輸出端的電位差與外界壓力成正比。
6.流量傳感器:安裝在靠近殼體擴張段的喉部,可檢測出旋渦進動的頻率信號。
7.整流器:固定在殼體出口段,其作用是消除旋渦流,以減小對下游儀表性能的影響。
1.2 工作原理
流量傳感器的流通剖面類似文丘利管的型式(如圖 2)。在入口側安放一組螺旋型導流葉片,當流體進入流量傳感器時,導流葉片迫使流體產生劇烈的旋渦流。當流體進入擴散段時,旋渦流受到回流的作用,開始作二次旋轉,形成陀螺式的渦流進動現象。該進動頻率與流量大小成正比,不受流體物理性質和密度的影響,檢測元件測得流體二次旋轉進動頻率就能在較寬的流量范圍內獲得良好的線性度。信號經前置放大器放大、濾波、整形轉換為與流速成正比的脈沖信號,然后再與溫度、壓力等檢測信號一起被送往微處理器進行積算處理,*后在液晶顯示屏上顯示出測量結果(瞬時流量、累積流量及溫度、壓力數據)。積算儀原理框圖如圖 3 所示。
1.3 流量積算儀工作原理
流量積算儀由溫度和壓力檢測模擬通道、流量傳感器通道以及微處理器單元組成,并配有外輸出信號接口,輸出各種信號。流量計中的微處理器按照氣態方程進行溫壓補償,并動進行壓縮因子修正,氣態方程如下:
QN——標況下的體積流量(Nm3/h);
QV——工況下的體積流量(m3/h);
Pa——當地大氣壓力(KPa);
P ——流量計取壓孔測量的表壓(KPa);
PN——標準狀態下的大氣壓力(101.325 KPa);
TN——標準狀態下的絕對溫度(293.15K);
T ——被測流體的絕對溫度(K);
ZN——氣體在標況下的壓縮系數;
Z ——氣體在工況下的壓縮系數;
注:當用鐘罩或負壓標定時取 ZN/Z=1,對天然氣(ZN/Z)1/2=FZ為超壓縮因子。按中國石油天然氣總公司的標準 SY/T6143-1996 中的公式計算。
旋進旋渦流量計技術性能
1.1 執行標準
JJG198-1994《速度式流量計》計量檢定規程
1.2 精準度等級
在規定的流量范圍內和工作條件下流量計的精確度等級為 1.0 級和 1.5 級。
1.3 流量計參數
注:準確度:為溫度、壓力修正后的系統精度
1.4 使用環境條件
環境溫度:-30℃~+65℃
相對濕度:5%~95%
介質溫度:-20℃~+80℃
大氣壓力:86KPa~106KPa
1.5 工作電源及信號輸出
1.5.1 工作電源
A.外電源:+24VDC±15%,紋波<5%,適用于 4~20mA 輸出、脈沖輸出、報警輸出、RS-485 等;
B.內電源:1 組 3.6V 鋰電池(ER26500),當電壓低于 3.0V 時,出現欠壓指示。
1.5.2 整機功耗
A.外電源:<2W;
B.內電源:平均功耗 1mW,可連續使用兩年以上。
1.5.3 脈沖輸出方式
工況脈沖信號,直接將流量傳感器檢測的工況脈沖信號經光耦隔離放大輸出,高電平≥20V,低電平≤1V;
定標脈沖信號,與 IC 卡閥門控制器配套,高電平幅度≥2.8V,低電平幅度≤0.2V,單位脈沖代表體積量可設定范圍:0.001m3~100m3。單選擇該值時必須注意:定標脈沖信號頻率應≤1000Hz。
定標脈沖信號,經光耦隔離放大輸出,高電平≥20V,低電平≤1V。
1.5.4 RS-485 通信(光電隔離),可實現以下功能:
A.采用 RS-485 接口,可直接與上位機或二次表聯網,遠傳顯示介質的溫度、壓力和經溫度、壓力補償后的標準體積流量和標準體積總量;
B.由 RS-485 接口與 HW-Ⅰ數據采集器配套,可組成電話網絡通信系統,一臺數據采集器可帶 15 臺流量計;
C.由 RS-485 接口與 HW-Ⅱ數據采集器配套,可組成寬帶網絡通信系統,由 INTERNET 傳輸數據,一臺數據采集器可帶 8 臺流量計。
1.5.5 4~20mA 標準電流信號(光電隔離)
與標準體積流量成正比,4mA 對應 0 m3/h, 20 mA 對應*大標準體積流量(該值可在一級菜單中進行設置),制式:兩線制或三線制,流量計可根據所插電流模塊自動識別,并正確輸出。
1.5.6 控制信號輸出
A.下限報警信號(LP):光電隔離,高低電平報警,報警電平可設定,工作電壓+12V~+24V,*大負載電流 50mA;
B.上限報警信號(UP):光電隔離,高低電平報警,報警電平可設定,工作電壓+12V~+24V,*大負載電流 50mA;
C.關閥報警輸出(BC 端,IC 卡控制器用):邏輯門電路輸出,正常輸出低電平,幅度≤0.2V;報警輸出高電平,幅度≥2.8V,負載電阻≥100kΩ;
D.電池欠壓報警輸出(BL 端,IC 卡控制器用):邏輯門電路輸出,正常輸出低電平,幅 度≤0.2V;報警輸出高電平,幅度≥2.8V,負載電阻≥100kΩ;
1.6 現場顯示功能
A.積算儀顯示面板上實時顯示工況(或標況)下的溫度、壓力、瞬時流量、累計流量;
B.報警功能:流量上下限、溫度上下限、壓力上下限報警,報警方式:字符閃爍。
1.7 防爆型式與等級
隔爆型:其防爆標志為 ExdIIBT4、ExdIICT4-T6(不含乙炔);
本安型:其防爆標志為 ExiaIICT4
1.8 防護等級
IP65
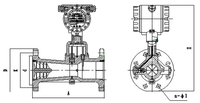
旋進旋渦流量計外形尺寸
流量計的外形尺寸見圖,圖中未注尺寸列于表 中,流量計采用法蘭連接方式。法蘭尺寸執行 GB/T9112~9113-2000 標準。
注:以上數據僅供參考,具體以實物為準,如有技術升級,暫不另行通知
旋進旋渦流量計安裝
1.1 流量計的安裝
1.流量計安裝時,嚴禁在其進出口法蘭處直接進行電焊,以免燒壞流量計內部零件。
2.對于新安裝或檢修后的管道務必進行清掃,去除管道中的雜物后方能安裝流量計。
3.流量計應安裝在便于維修、無強電磁場干擾、無強烈機械振動以及熱輻射影響的場所;
4.流量計不宜用在流量頻繁中斷和有強烈脈動流或壓力脈動的場合;
5.流量計室外安裝時,上部應有遮蓋物,以防雨水浸入和烈日曝曬影響流量計使用壽命;
6.流量計可任意角度安裝,流體的流向應與流量計上標識的流向一致;
7.在管道施工中,應考慮安裝伸縮管或波紋管,以免對流量計造成嚴重的拉伸或斷裂;
8.流量計應與管道同軸安裝,并防止密封片和黃油進入管道內腔;
9.采用外電源時,流量計必須有可靠接地,不得與強電系統共用地線,在管道安裝或檢修時,不得把電焊系統的地線與流量計搭接。
10.為了不影響流體正常輸送和便于維護,要求按圖 6 所示安裝旁通管道,并保證前≥3DN、 后≥1DN 的直管段;
1.2 直管段要求
根據旋進旋渦流量計的工作原理和流量計對上、下游直管段要求,對各種上游阻力件,建議采用如圖 所列的前后直管段長度,且保持直管段內壁光滑平直。
1.3 安裝注意事項
1.傳感器按流向標志可在垂直、水平或任意傾斜位置上安裝;
2.當管線較長或距離振動源較近時,應在流量計的上、下游安裝支撐,以消除管線振動的影響;
3.傳感器的安裝地點應有足夠的空間,以便于流量計的檢查和維修,并應滿足流量計的環境要求;
4.應避免外界強磁場的干擾;
5.在室外安裝使用時,應有遮蓋物,避免烈日曝曬與雨水浸蝕,影響儀表使用壽命;
6.管線試壓時,應注意智能型流量計所配置壓力傳感器的壓力測量范圍,以免過壓損壞壓力傳感器;
7.應注意安裝應力的影響,安裝流量計上游和下游管道應同軸,否則會產生剪切應力。安裝流量計的位置應考慮密封墊片的厚度,或在下游安裝一個彈性伸縮節;
8.安裝流量計之前應先清除管道中的焊渣等雜物;
9.投入運行時,應緩慢開啟流量計上、下游閥門,以免瞬間氣流過急而沖壞起旋器;
10.當流量計需要有信號遠傳時,應嚴格按“工作電源”要求接入外電源(8~24)VDC,嚴禁在信號輸出口直接接入 220VAC 或 380VAC 電源;
11.用戶不得自行更改防爆系統的接線方式和任意擰動各個輸出引線接頭;
12.流量計運行時,不允許隨意打開后蓋改動儀表參數,否則影響流量計的正常工作;
13.定時檢查流量計法蘭處的泄漏情況。
1.4 內置電池的使用及更換
1.電池電量顯示
當電池顯示僅剩一格時,要求用戶在一個月內更換電池;只顯示電池外形符號時,則電池電量已耗盡,必須立即更換電池。
2.電池的更換方法
打開智能流量積算儀的后蓋,松開電池蓋板上的三顆螺釘,拔下電池插座,取出電池,換好新電池后重新安裝。
1.5 防爆場所安裝要求
1.流量計應有可靠的接地,防爆接地不應與強電系統的保護接地共用;
2.現場測試電源時,不允許使用交流電源接地;
3.在任何情況下,用戶不得自行更改防爆電路、元器件和防爆型式;
4.必須先切斷外接電源再打開轉換器蓋子。




|